Home / Kirsikkatien asemakaava
Tuomas Myllymäki Rakennuttaja, RI (AMK) Puh. 040 839 6412 tuomas.myllymaki@bunga.fi
------------------------------------------
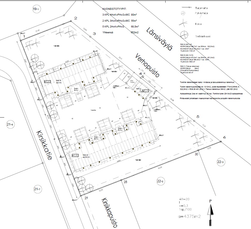
Rakentaminen alkaa v. 2026. Ota yhteyttä, jos kiinnostuit!
Rivitaloasuntoja Lammi-kivestä; 95 m2, 80 m2, 68,5 m2, 55 m2